Image

Yükleniyor

Image
Tatlıcak Mah. Turanoğlu Sokak No:25/I Karatay-KONYA
+90 532 463 52 02

bilgi@konyaprefabrik.com

© 2025 Prefabrik Dünyası | Setup Medya

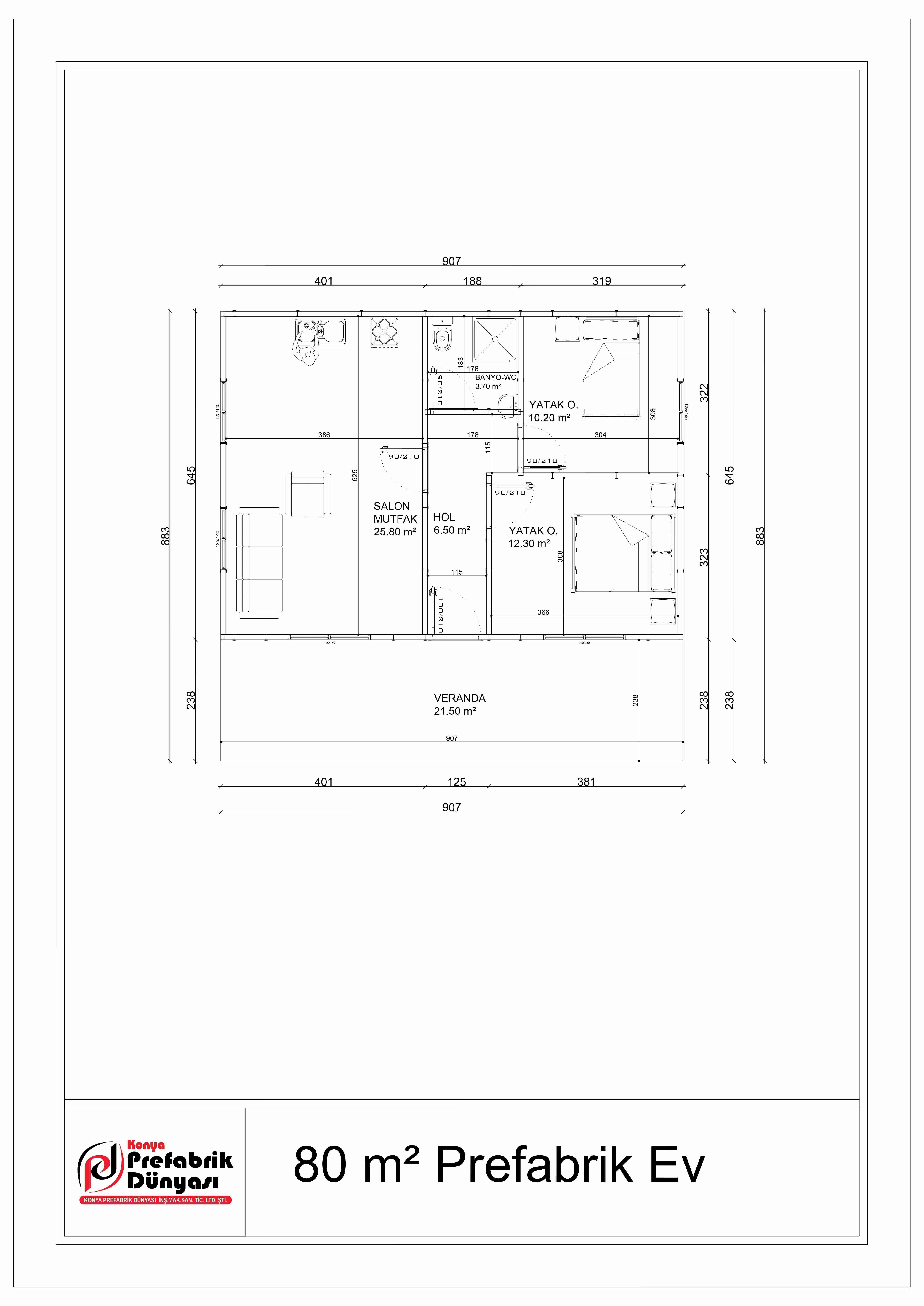
80 m² Prefabrik Ev – 2+1

Genel Özellikler

Bu 80 m²’lik prefabrik ev modeli, modern yaşamın ihtiyaçlarına cevap verecek şekilde tasarlanmış fonksiyonel bir 2+1 yerleşim planı sunar. Estetik cephe görünümü, geniş ön verandası ve dengeli iç mekân dağılımı ile hem yazlık hem de sürekli yaşam alanı olarak tercih edilebilecek niteliktedir. Evin dış cephesinde taş desenli kaplama detayı ve geniş saçaklı çatı sistemi hem görsel estetik hem de iklimsel koruma sunar.

 

İç Mekân Dağılımı

 

Ev toplamda 80 m² kullanım alanına sahiptir ve şu bölümlerden oluşur:

Salon + Mutfak: 25.80 m² — Açık mutfak konseptiyle birleşen geniş salon, evin merkezini oluşturur ve gün ışığını maksimum seviyede içeri alır.
Ebeveyn Yatak Odası: 12.30 m² — Rahat bir yaşam alanı sunan bu oda, çift kişilik kullanım için idealdir.
İkinci Yatak Odası: 10.20 m² — Tek kişilik ya da çocuk odası olarak kullanılabilir.
Banyo-WC: 3.70 m² — Kompakt ama işlevsel bir banyoya sahiptir.
Hol: 6.50 m² — Odalar arasında bağlantı sağlayan ve ferah bir geçiş alanı sunan koridor.
Veranda: 21.50 m² — Geniş ve kullanışlı verandası ile dış mekânda konforlu bir yaşam alanı sunar.

 

Neden Bu Model?

Geniş Veranda: Özellikle doğa ile iç içe yaşamak isteyenler için büyük avantaj. Dış mekânı yaşam alanına dahil etmek isteyenler için ideal.
Optimum Alan Kullanımı: 80 m²’lik alanda iki yatak odası, geniş bir salon ve işlevsel mutfak gibi temel yaşam alanları başarılı şekilde organize edilmiştir.
Kompakt ve Kullanışlı: Kalabalık olmayan aile yapıları veya kırsal alanlara yapılacak yerleşimler için dengeli ve ekonomik bir çözüm sunar.
Estetik ve Dayanıklılık: Dış cephesindeki taş desenli kaplama ve modern çatı formu ile görsel şıklık kadar sağlamlık da ön planda tutulmuştur.

 

Bu model, hem yazlık hem de yıl boyu yaşanabilir bir konut arayanlar için dengeli ve işlevsel bir alternatiftir. Geniş veranda kullanımı ile fark yaratan bu yapı, minimal alanlarda maksimum konfor hedefleyenler için ideal bir tercihtir.

Ürünlerimiz