Image

Yükleniyor

Image
Tatlıcak Mah. Turanoğlu Sokak No:25/I Karatay-KONYA
+90 532 463 52 02

bilgi@konyaprefabrik.com

© 2025 Prefabrik Dünyası | Setup Medya

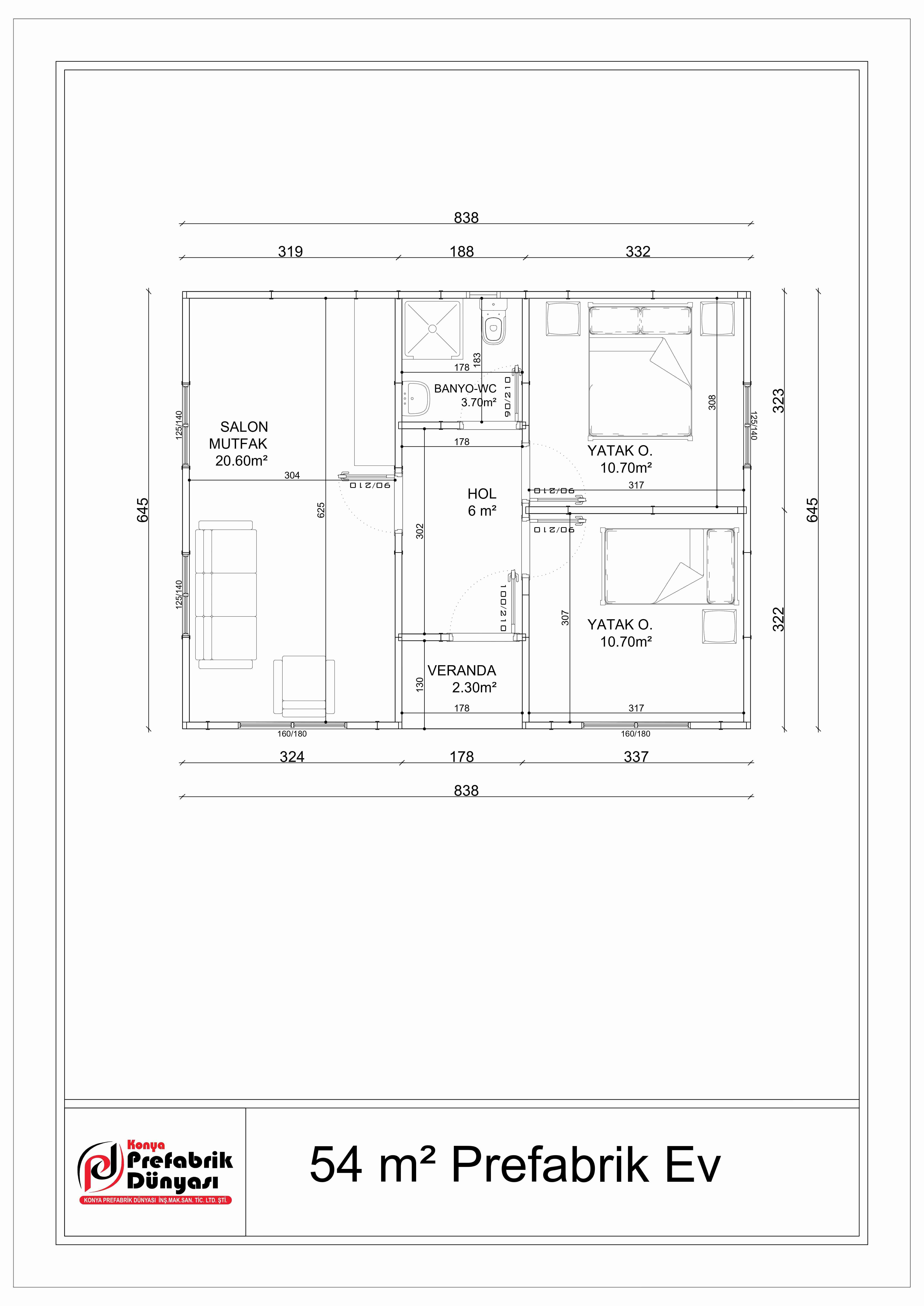
54 m² 2+1 Prefabrik Ev – Verandasız

 

Modern çizgileri ve işlevsel iç düzeniyle dikkat çeken bu 54 m²’lik 2+1 prefabrik ev modeli, kompakt yapısı sayesinde hem şehir içinde hem de doğayla iç içe alanlarda ideal bir yaşam alanı sunuyor.

 

Genel Özellikler:

Toplam Alan: 54 m²
Oda Sayısı: 2 Yatak Odası + 1 Salon / Mutfak + Banyo/WC + Hol
Veranda: 2,3 m² giriş alanı
Cephe: Simetrik ve sade tasarımlı, estetik LED aydınlatmalarla desteklenmiş
Çatı: Beşik çatı tipi, yağmur tahliye sistemi entegre
Dış Cephe Kaplama: Antrasit renk paneller, beyaz derz çizgileriyle modern görünüm
Zemin: Yükseltilmiş beton platform ve tuğla kaplama etek detayları

 

İç Mekân Dağılımı:

Salon + Mutfak: 20.60 m² – Açık mutfak konsepti ile geniş ve ferah bir yaşam alanı
Yatak Odaları: 2 x 10.70 m² – Çift kişilik yatak ve gardırop sığacak ölçülerde
Banyo/WC: 3.70 m² – Kompakt ama işlevsel
Hol: 6.00 m² – Odalar arası geçişi rahatlatan merkezi koridor
Veranda: 2.30 m² – Üzeri kapalı giriş alanı

 

Neden Bu Model?

Küçük arazilere uygun yerleşim avantajı
Düşük enerji tüketimiyle sürdürülebilir yaşam
Pratik, estetik ve fonksiyonel bir mimari
İklim koşullarına dayanıklı yapı malzemeleri
Kısa sürede kurulum ve uygun maliyetli çözümler

 

54 m²’lik bu model, yazlık, bağ evi, misafir evi ya da kalıcı konut olarak tercih edilebilir. Prefabrik yapıların sunduğu hız, ekonomik avantaj ve esneklikle kendi yaşam alanınızı kısa sürede kurabilirsiniz.

 

Ürünlerimiz