Image

Yükleniyor

Image
Tatlıcak Mah. Turanoğlu Sokak No:25/I Karatay-KONYA
+90 532 463 52 02

bilgi@konyaprefabrik.com

© 2025 Prefabrik Dünyası | Setup Medya

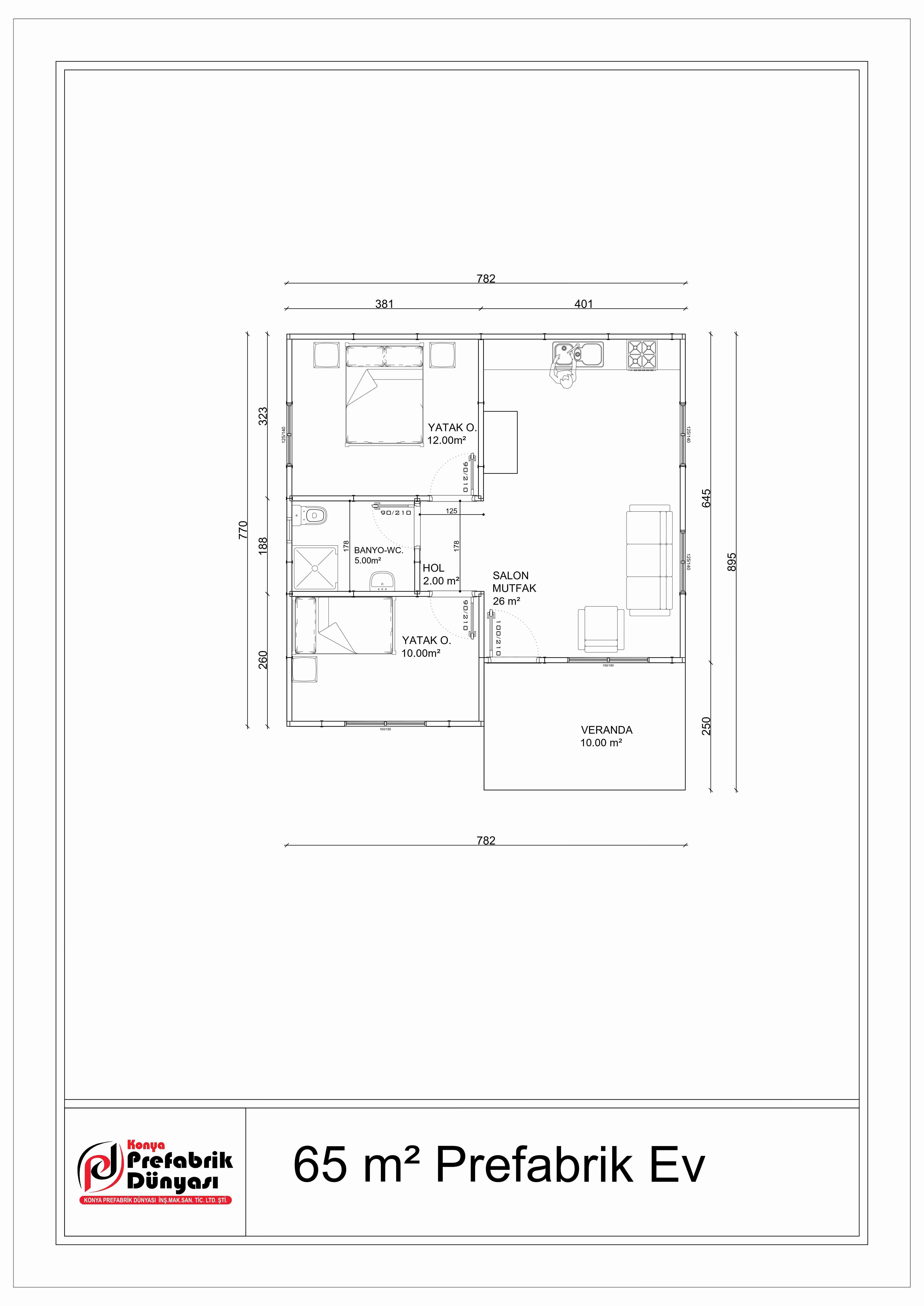
2+1 | 65 m² Prefabrik Ev

Kompakt, Şık ve Fonksiyonel Yaşam Alanı

Konya Prefabrik Dünyası’nın 65 m²’lik bu 2+1 modeli, modern mimarisi ve işlevsel planlamasıyla dikkat çekiyor. Geniş verandası sayesinde hem içeride hem dışarıda konforlu yaşam alanı sunar.

Plan Özellikleri:

Salon + Mutfak: 26.00 m² – Açık konsept geniş yaşam alanı
Ebeveyn Yatak Odası: 12.00 m² – Ferah ve aydınlık
Yatak Odası: 10.00 m² – Çocuk odası veya çalışma alanı için ideal
Banyo + WC: 5.00 m² – Modern ve kullanışlı
Hol: 2.00 m² – Geçiş alanı
Veranda: 10.00 m² – Dış mekân keyfi için harika bir alan

 

Teknik Avantajlar:

Yüksek ısı ve ses yalıtımı
Çelik konstrüksiyon taşıyıcı sistem
Kısa sürede kurulum
İklim koşullarına uygun çatı ve dış cephe kaplaması
Enerji verimliliği yüksek yapı malzemeleri

 

Neden Bu Model?

Aile yaşamına uygun: 2 ayrı yatak odası ve ferah salon
Şehirden uzak ama konforlu: Doğa içinde bir yaşam düşleyenler için birebir
Yatırım değeri yüksek: Yazlık, dağ evi ya da kalıcı konut olarak kullanılabilir

 

Dış cephede kullanılan modern renkler ve veranda alanındaki oturma grubu, hem estetik hem fonksiyonel bir yaşam deneyimi sunar.

Ürünlerimiz