Image

Yükleniyor

Image
Tatlıcak Mah. Turanoğlu Sokak No:25/I Karatay-KONYA
+90 532 463 52 02

bilgi@konyaprefabrik.com

© 2025 Prefabrik Dünyası | Setup Medya
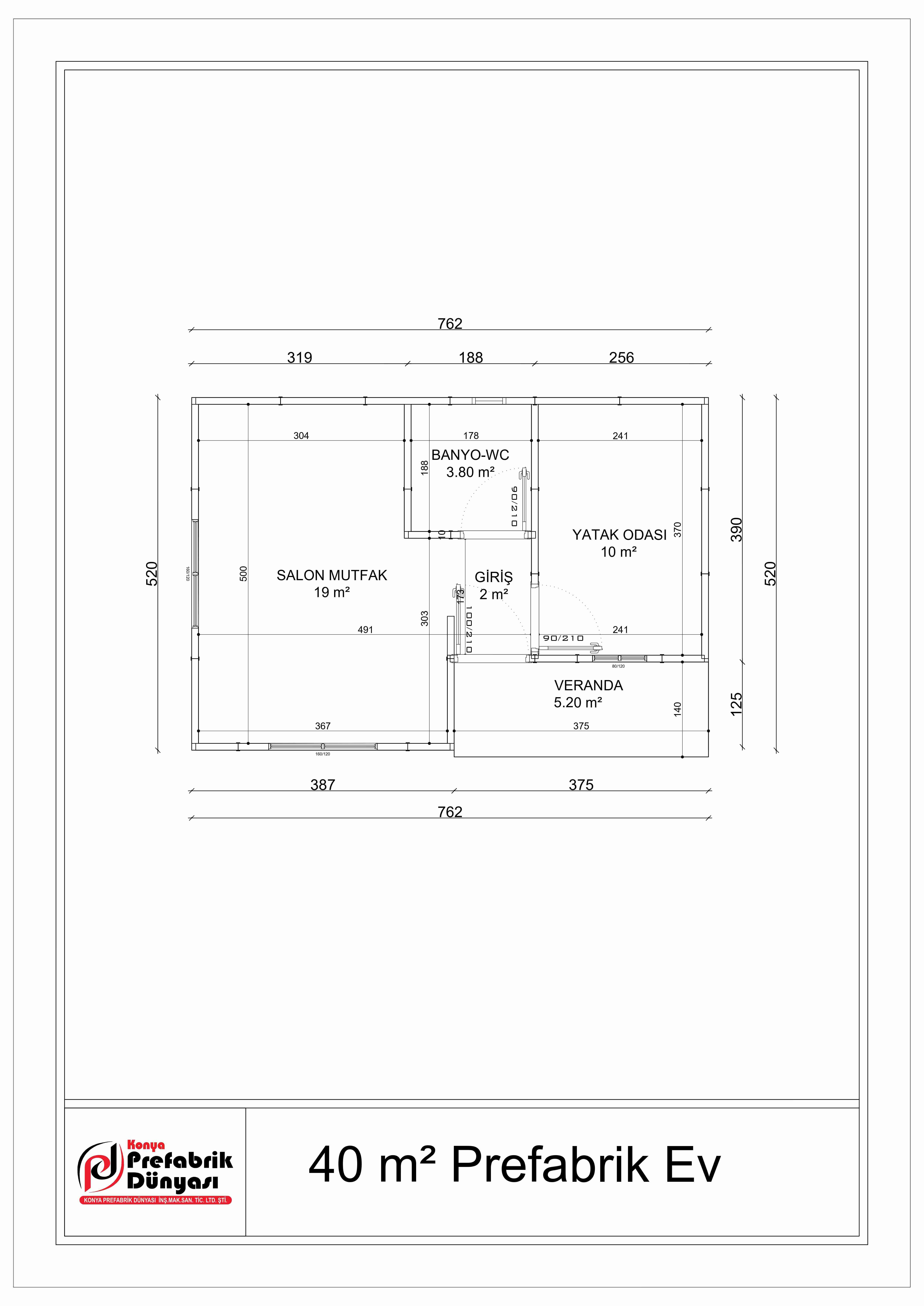
40 m² Modern Prefabrik Ev
 
Doğayla iç içe, konforlu ve ekonomik bir yaşam alanı arayanlar için tasarlandı!
 
Bu 40 m² prefabrik ev modeli; modern mimarisi, estetik detayları ve kullanışlı iç planlamasıyla öne çıkıyor. Hem yazlık hem de sürekli yaşam için uygun olan bu yapı, özellikle şehirden uzak, sakin bir yaşam kurmak isteyenler için ideal bir çözüm sunuyor.
 
İç Mekan Planlaması:
• Salon + Mutfak: 19 m² — Açık plan tasarımıyla ferah bir yaşam alanı
• Yatak Odası: 10 m² — Çift kişilik yatak ve gardırop için yeterli alan
• Banyo + WC: 3.8 m² — Modern ve işlevsel banyo ünitesi
• Giriş Holü: 2 m² — Alanı verimli kullanan pratik geçiş alanı
• Veranda: 5.2 m² — Dinlenme ve keyifli vakit geçirmek için huzurlu bir dış mekan
 
Teknik Özellikler:
• Toplam Brüt Alan: 40 m²
• Dış Cephe: Yalıtımlı ve estetik panellerle kaplanmış
• Çatı: Dayanıklı trapez sac kaplama, içe gömme LED aydınlatmalarla çevrelenmiş
• Zemin: Betonarme üzerine monte edilen modüler sistem
• Pencereler: PVC doğrama ve çift cam izolasyon
• Kapılar: Güvenlikli çelik dış kapı ve iç mekan uyumlu oda kapıları
• Elektrik & Su Tesisatı: Kullanıma hazır, yönetmeliklere uygun kurulum
 
Kullanım Alanları:
• Yazlık veya dağ evi
• Bağ evi ya da hobi bahçesi konutu
• Misafir evi
• Tiny house alternatifi
 
Avantajları:
• Hızlı kurulum (1 hafta içinde teslim ve montaj)
• Yüksek ısı ve ses yalıtımı
• Düşük bakım maliyeti
• İsteğe özel renk ve iç plan değişikliği

Ürünlerimiz